Page 92 - sbpstudents_090925_gesamt_kl
P. 92

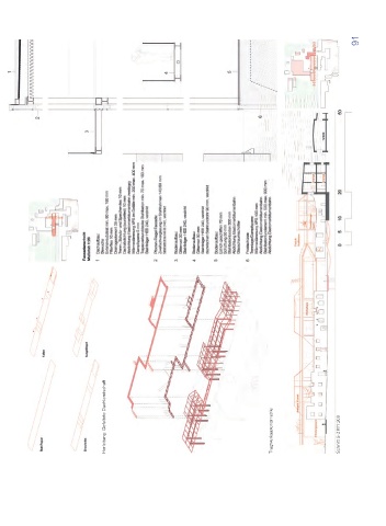
90 Projekteinreichung: Mensching Mikkel                                                                            91  91
   87   88   89   90   91   92   93   94   95   96   97